鋁合金壓鑄件側壁有凹凸形狀、側孔和扣位時,模具開模頂出鋁合金壓鑄件前則須將側向型芯抽出,此機構稱行位。

膠件外側孔,需后模行位抽芯

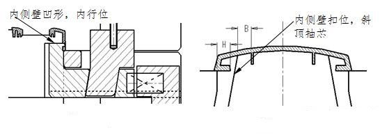
內側凹槽,若用斜頂出模,頂部開距不夠,須采用內行位
利用斜向頂出,頂出和抽芯同時完成的頂出機構稱斜頂。對膠件上需抽芯的部位,當行位空間不夠時,可利用斜頂機構完成。斜頂機構中,斜向頂出距離應大于抽芯距離(B>H),防止頂出干涉。

鋁合金壓鑄件內、外側壁都有凹形,內側有骨位阻礙和高度不夠原因,須對外側壁前模行位,內側壁斜頂出模。
鋁合金壓鑄件側孔周圍不能有夾線,側孔須前模行位抽芯,扣位斜頂出模。